設備介紹
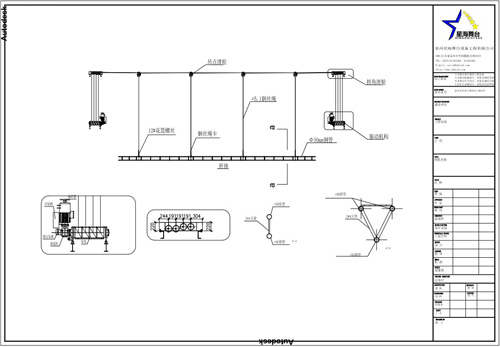
1)吊桿設置于主舞臺內上部,專用于吊掛舞臺燈具或景物的電動升降裝置。上置垂直電纜收納裝置和水平電纜轉接裝置用以張掛、連接舞臺燈具及相關設備。
2)桿體剛度、平整度符合相關規范要求,兩端配置黑色永久性塑料帽及熒光標識牌,保護裝置配置:雙制動、超程開關、緊急按紐等。
3)吊桿由桿體結構、卷揚系統和控制系統等組成。
具體由下述部分組成:
l 桿體:三角桁架(雙排桁架)、收線筐組成;并預留線槽、插座、接線箱安裝 位置;兩端配置黑色永久性塑料帽及熒光標識牌。
l 提升卷揚裝置:包括電動機、減速器、制動器、編碼器、卷筒等;
l 雙(單)制動器,帶手動釋放操作裝置;
l 限位裝置,設零位和上、下限位行程開關及超程保護開關;
l 單、多繩滑輪組件。
4) 吊桿主卷揚系統全套采用星海舞臺成熟產品。該產品已經過多個大型劇場使用,技術成熟,運行穩定,產品質量可靠,維護保養工作量少,性能指標完全滿足劇場使用要求。
技術規格
位置
主舞臺上空
尺寸
根據劇場臺口寬度定制
類型
懸掛設備
載荷
100-2000kg可選
行程
1-40m可選
速 度:
0.01-0.8m/s變頻調速或定速
定位精度:
≤±3mm
運行噪音:
≤48dB(A)
驅動類型
使用三相交流異步電機
制動裝置
獨立雙制動器或單制動器可選